12580 County Road 3612 |
|
Price: | $345,000 |
Property Type: | farms_ranches |
Status: | Active |
MLS #: | 25015285 |
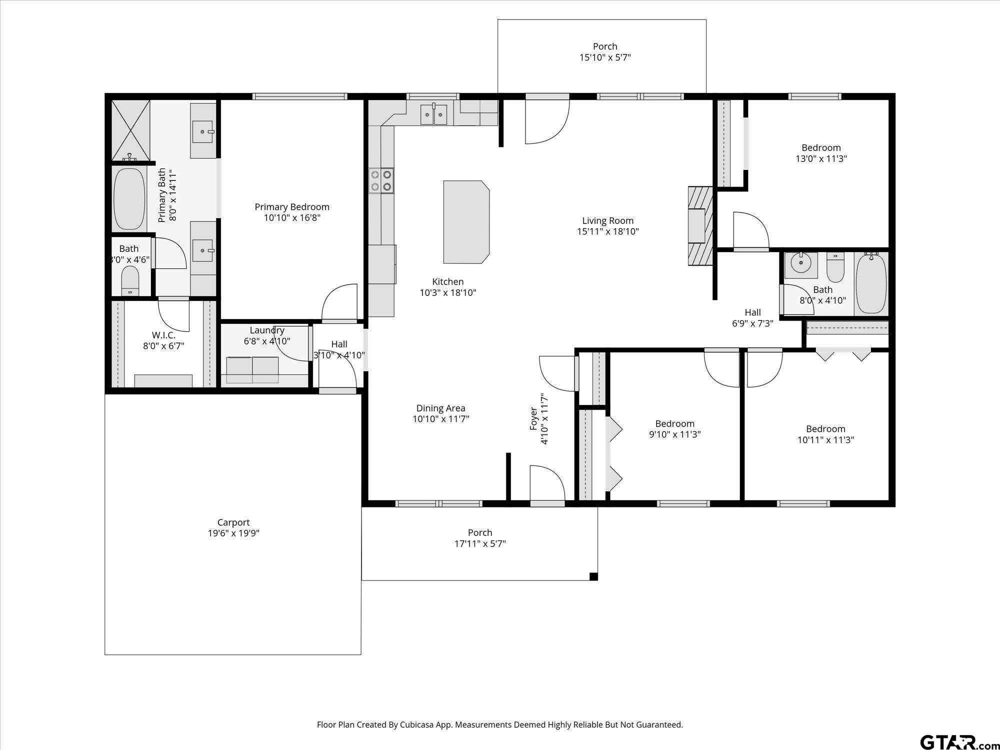
Dreaming of peaceful country living? This desirable 10-acre property offers the perfect blend of peaceful, rural living and modern comfort. This spacious 4-bedroom barndominium, built in 2015, welcomes you with an entryway and formal dining space, and features a split floor plan, centered on a large kitchen with an island. The open concept kitchen is adjacent to living space that is anchored by a cozy fireplace. Four bedrooms and two bathrooms offer space for family, guests, an office, or a hobby room, while the outdoors offer endless possibilities for farming, livestock, homesteading, gardening, or whatever your heart desires. Step outside to take in the East Texas countryside, surrounded by towering trees and wide-open skies. The property includes a 2-car carport and plenty of room to add a shop or barn. Nestled on a quiet, tree-lined county road, conveniently located between Athens and Tyler, this property offers the tranquility of country life with easy access to town and amenities. | |
Area: | Henderson |
Year Built: | 2015 |
Bedrooms: | Four |
Bathrooms: | Two |
Garage: | 0 |
Acres: | 10 |
CONSTRUCTION : | Metal |
COOLING : | Central Electric |
DINING AREAS : | Separate Formal Dining |
DINING AREAS : | Kitchen/Eating Combo |
DINING AREAS : | Breakfast Bar |
FENCING : | Barbwire Fence |
FENCING : | Partial Fence |
FIREPLACE : | Wood Burning |
INTERIOR : | Ceiling Fan |
KITCHEN EQUIPMENT : | Range/Oven-Electric |
KITCHEN EQUIPMENT : | Dishwasher |
KITCHEN EQUIPMENT : | Microwave |
KITCHEN EQUIPMENT : | Island |
OUTBUILDINGS : | None |
POOL/SPA : | None |
Courtesy: Dickson, Stacey • Good Realty • 903-714-0487
The data relating to real estate for sale on this website comes in part from the Internet Data Exchange (IDX) of the Greater Tyler Association of REALTORS Multiple Listing Service. The IDX logo indicates listings of other real estate firms that are identified in the detailed listing information. The information being provided is for consumers' personal, non-commercial use and may not be used for any purpose other than to identify prospective properties consumers may be interested in purchasing. This information is deemed reliable, but not guaranteed.
This content last refreshed on 10/18/2025 06:00 PM. Some properties which appear for sale on this web site may subsequently have sold or may no longer be available.
Information About Brokerage Services
|
Consumer Notice
© Marshall Property Group
|
Website by GroupM7 Design™